SERVICES
ABOUT US
OUR WORK
GRAPHIC DESIGN
INTERIOR DESIGN
FABRICATION DESIGN
CONTACT US
Back
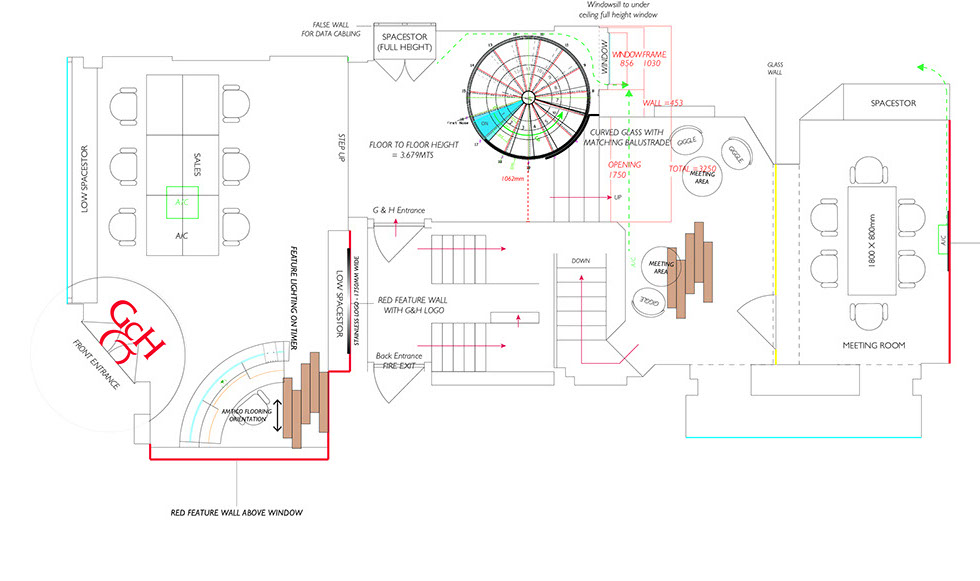
RENOVATION IMAGES
LITTLE VENICE
<
>
BACK
© MATTHEW WURR & CO