Services
About Us
Our Work
Contact Us
BACK
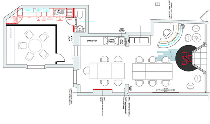
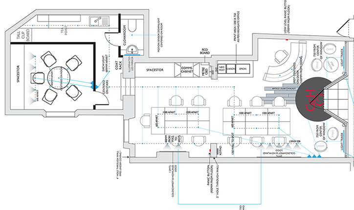
RENOVATION IMAGES
HYDE PARK
<
>
BACK
© MATTHEW WURR & CO